Big Bag Entleerstation

Big Bag Entleerstation


Der gefüllte Big-Bag mit dem Rohstoff wird mit Hilfe eines Gabelstaplers einfach an die Big-Bag-Rahmenstruktur gehängt. Alternativ zum Gabelstaplerbetrieb bieten wir auch elektrisches oder pneumatisches Hebezeug zur Positionierung des BIG BAG an.

Die Höhenverstellung des Rahmens, die zur Anpassung an die Abmessungen der Big Bags notwendig ist, ist dank der teleskopischen Stützen des Big Bag-Gestells möglich. Vielseitiger Stützrahmen mit 4 höhenverstellbaren Ständern mit Versteifungsquerstreben, die durch ebenfalls höhenverstellbare Gelenke zusammengefügt werden.

Der Käfig, der auch als Sicherheitselement bezeichnet wird, ist auf entsprechenden Gummischwingungsdämpfern montiert, um die Schwingungen nur auf den Big Bag und seinen Pulverinhalt und nicht auf die Big Bag-Entleerungsstruktur zu übertragen.

Tragfähigkeit bis zu 2000 kg je nach Ausführung.

youtube video thumbnail
youtube video thumbnail
Big Bag Entleerstation technische Zeichnung
  1. Vibrationstrichter, patentiert
  2. Höhenverstellbare Stützen
  3. BIG BAG Kreuztragrahmen
  4. Elektromechanischer Vibrator
  5. Staubdichtung
  6. BIG BAG Zugangstür
  7. Flexible Dichtmanschette
  8. Anschluss für Fördersystem
  9. Sicherheitsschalter
  10. Brückenbrecher
  11. Manueller Absperrschieber
  12. Verschraubtes, modulares BIG BAG Gestell mit patentierten Community-Design
  13. Flexible Förderschnecke
  14. Sicherheitselement, patentiert

Big Bag Entleerung - Zubehör


Bei schädlichen Produkten oder sehr feinem Staub gibt es auch die Lösung mit einem integrierten, abgedichteten, beweglichen Anschlussteil, der, vertikal angetrieben von zwei pneumatischen Aktuatoren, den unteren Auslauf des Big Bag zusammendrückt, wodurch die Entleerung völlig hermetisch wird.

Bei sperrigen Pulvern sind die Big-Bag-Entleerungsanlagen gegebenenfalls auch mit pneumatischen Kolben ausgestattet, die direkt auf den Big-Bag einwirken, um ein gleichmäßiges Absinken des Pulvers und damit einen Produktionsprozess ohne kostspielige Unterbrechungen zu gewährleisten.

Eine Teilentladung des Big-Bags wird bei Bedarf durch zwei weitere pneumatische Kolben ermöglicht, die über eine sichere Zweihandsteuerung auf die Big-Bag-Entleerungsöffnung wirken und diese zusammendrücken, so dass der BIG BAG wieder manuell verschlossen werden kann.

Wenn der Big Bag unten geschlossen ist und keine Entleerungsöffnung hat, ist es möglich, den Übergabetrichter mit einem geeigneten Schneidsatz mit einem seitlichen Erhöhungskasten zu integrieren, der den beim Schneiden des Big Bag selbst entstehenden Staub auffängt.

Auf Anfrage Spezialanfertigungen, die konform mit der Richtlinie ATEX 2014/34/EU für Zone 2 - 22 und Zone 1 - 21 sind.

Big-Bag-Entleerungstrichter mit Schneidesatz und Box zur Aufnahme des beim Entleeren entstehenden Staubs, mit Vorrichtung zum Auffangen des Staubs an allen vier Seiten. Big-Bag-Schneidesatz in U-Form für Big Bags sowohl mit Standardauslauf als auch mit geschlossenem Boden.

Seitliche Kolben, die direkt auf den BIG BAG drücken, um diesen seitlich zu bewegen und damit die Entleerung zu erleichtern.

Pneumatischer Big-Bag-Verschluss, der eine teilweise Entleerung des Big-Bags und den Austausch gegen einen anderen Big-Bag-Typ ermöglicht, ohne dass eine vollständige Entleerung abgewartet werden muss. Diese Lösung ist geeignet, wenn verschiedene Pulversorten in derselben Big-Bag-Entleerungsanlage verarbeitet werden.

Big Bag Entleer Trichter


Der darunter liegende Kunststofftrichter ermöglicht ein sicheres Öffnen und staubfreies Befüllen des Big Bags dank des seitlichen Saugeinlasses und der oberen Dichtung am Boden des Big Bags.

Der “patentierte” Übergabetrichter befindet sich in einem umgekehrten pyramidenstumpfförmigen Bewehrungskorb, auf dem der elektromechanische Vibrator mit einstellbaren Exzentermassen verschraubt ist.

Der für den geformten Trichter verwendete Kunststoff ist FDA -10/2011- MOCA 1935/2004 zugelassen, antistatisch und Atex 2014/34/EU-konform. Auf Anfrage sind auch Lösungen mit einem Trichter aus Edelstahl 1.4301 oder 1.4404 erhältlich.

Weitere Vorteile des Kunststoff-Trichters sind der niedrige Reibungskoeffizient, die leichte Staubabfuhr und die hervorragende Reinigung dank abgerundeter Ecken und Korrosionsbeständigkeit

Weitere Merkmale

modelle


Standard Big Bag Entleerstation

Standard Big-Bag-Entleerstation
Modell Max Belastung (kg) A (mm) B (mm) C (mm) D (mm) E (mm) F (mm) G (mm) H (mm) I (mm)
SSB 10 1000 3750 2710 1320 1570 1640 80 60 17 2230
SSB 15 1500 3750 2710 1320 1570 1640 80 60 17 2230
SSB 20 2000 3750 2700 1370 1620 1690 90 60 17 2230
Abmessungen der Standard-Big-Bag-Entleerstation

Standard Big Bag Entleerstation mit Kran

Big-Bag-Entleerstation mit Hebezeug
Modell Max Belastung (kg) A (mm) B (mm) C (mm) D (mm) E (mm) F (mm) G (mm)
SSP.10/20 1000/2000 5540 4012 1250 1750 1818 3180 1538
Abmessungen der Big-Bag-Entleerstation mit Hebezeug

Big Bag Entleerstation mit Kran und verlängertem Gestell

Big-Bag-Entleerstation mit Kran
Modell Max Belastung (kg) A (mm) B (mm) C (mm) D (mm) E (mm) F (mm) G (mm)
SPR.10/20 1000/2000 4415 2812 1283 1770 1225 2696 1920
Technische Zeichnung Big-Bag-Entleergerät

Müssen viele Big Bags entleert werden? Ist es schwierig, die darin entstandenen Agglomerate so zu lockern, dass sie den nachfolgenden Materialtransport nicht verzögern?

Eine Maschine entklumpt automatisch aufgrund von Lagerung und Transport verfestigtes Schüttgut auf und ermöglicht der Big-Bag Entleerstation einen problemlosen Austrag der Materialien.

Bulk-bag-conditioner

Mögliche Konfigurationen der Gimat Big Bag Entleerstation


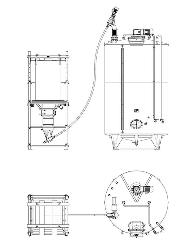
Big Bag Entleerung mit flexibler Förderschnecke
Big Bag Entleerung mit flexibler Förderschnecke
Befüllung von zwei Tanks aus einem einzelnen Big Bag-Entleerstation
Optimierte Struktur für die Entleerung von Big Bags bei begrenzten Platzverhältnissen
Optimierte Struktur für die Entleerung von Big Bags bei begrenzten Platzverhältnissen

Big-Bag-Entleerstationen in verschiedenen Konfigurationen mit:

  • Tragrahmen aus verzinktem Normalstahl oder Edelstahl
  • Trichter aus Kunststoff (Standardversion) oder auf Wunsch aus Edelstahl
  • Puffertrichter

Entleerung von Big Bags mit elektrischen Kettenzug in folgenden Ausführungen:

  • Konstruktion mit Auslegerbalken für geringen Platzbedarf, einfachen Zugang und flexible Installation. Erfordert ein Fundament, das für strukturelle Verankerungen geeignet ist, um dem Kippmoment standzuhalten, das durch die Last des hängenden Big Bags erzeugt wird.
  • Konstruktion mit Portalrahmen, ideal für die Installation in Bereichen, in denen Industrieböden eine geringe Widerstandsfähigkeit gegenüber konzentrierten Lasten aufweisen.

Vereinfachtes Big Bag Entleersystem für sehr feine oder gefährliche Pulver. Entwickelt, um Kosten zu senken und gleichzeitig die Effizienz bei zu behalten. Gewährleistet die hermetische Abdichtung der Big Bag Auslassöffnung. Die Entlüftung und Entstaubung kann zu einem selbstreinigenden Atmosphärenfilter mit automatischer Staubrückgewinnung geleitet werden.

Lösung für die sichere Entleerung von Big Bags mit schädlichen Stäuben, bestehend aus:

  • Staubauffang-Trichter
  • Dichtungsring, vertikal bewegt durch zwei Pneumatik-Kolben, um den hermetischen Verschluss der Auslassöffnung des Big Bags zu gewährleisten
  • Entlüftung und Entstaubung wird zu einem Atmosphärenfilter geleitet, der mit Druckluft- Gegenstrom-Reinigung und Inline-Staubrückgewinnung arbeitet

In der gleichen Produktfamilie haben wir auch:

BIG BAG BEFÜLLSTATION

ANWENDUNGS-BEREICHE


Schauen Sie sich die möglichen Anwendungen der Gimat Big Bag Entleerstationen in verschiedenen Industriezweigen an.

BIG BAG ENTLEERSTATIONEN FÜR UNTERNEHMEN AUS DEM LEBENSMITTEL-SEKTOR

Auf unserem YouTube-Kanal finden Sie Anwendungsbeispiele unserer Big Bag Entleerstationen und Komplett-Anlagen, die von Gimat entwickelt und hergestellt wurden.